Наши выставки
Россия г. Калиниград

Приморское кольцо 2/1, ТЦ Балтия Молл

Россия г. Калиниград

Советский проспект 159г, ТЦ Гранд

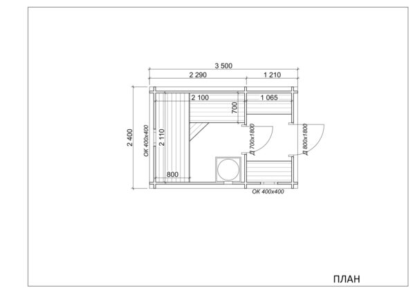
"Народная баня МКС" (3,5х2,4)

[woosw id="'{$product_id}""]
Рубрика

Мы рады представить вам *«Народную баню МКС»* — деревянное сооружение, выполнено из экологически чистого бруса. Натуральный материал обеспечивает безопасность и создаёт уютную атмосферу для полноценного отдыха. В основе конструкции — сочетание традиций русской бани и современных технологий.

Размеры бани — *3500 × 2400 мм*, что позволяет разместить в ней достаточное количество людей для комфортного времяпрепровождения с семьёй или друзьями.

Эта баня — отличный выбор для тех, кто ценит *простоту в транспортировке и установке*. Её можно быстро переместить на участок и собрать без сложных действий. Такой подход делает её удобной и практичной в использовании.

Каждая деталь бани проходит *строгий контроль качества на производстве*, что гарантирует прочность, долговечность и безупречное исполнение. Вы получаете готовое решение, соответствующее высоким стандартам.

Для удобства эксплуатации *топка расположена снаружи*, что позволяет поддерживать чистоту внутри помещения и безопасно разводить огонь. Это особенно удобно в повседневной эксплуатации.

Дизайн бани выполнен в *современном стиле*, который подойдёт как для традиционного, так и для современного участка. Аккуратные линии, натуральные материалы и продуманная компоновка делают её привлекательной как функционально, так и визуально.

В центре конструкции — *русская парная*, где вы сможете наслаждаться традиционным банно-саунным ритуалом: париться, принимать травяные ванны, расслабляться и восстанавливать силы. Всё продумано для вашего комфорта и здоровья.

Описание

Стены и перегородки Материал изготовления бани — отборный хвойный профиль камерной сушки, толщиной 43-44мм, влажностью – 10-14%. Снаружи и внутри обработанный защитным составом (антисептиком).
Материал кровли Гибкая черепица
Ветровые и торцевые планки Строганная доска камерной сушки 20*145 мм
Соединение между ламелями Осуществлено способом «шип\ паз». С применением герметизирующего, акрилового раствора «тёплый шов» Каждая ламель крепится друг к другу при помощи конструкционных саморезов, располагающихся в шахматном порядке друг от друга.
Полы Шпунтованная доска камерной сушки 28 мм по деревянным лагам 45*145 мм
Двери Входная дверь металлическая. Межкомнатные двери стеклянные Бронза (800*1800 мм) – 1шт — монтируются с использованием пакли.
Окна В парилке и комнате окно из липы, деревянное, со стеклопакетом (400*400 мм)
Наличники Строганная доска камерной сушки сечением 20*90 мм
Подставка под печь Нержавеющая сталь, ЦСП, воздушный зазор
Печь с выносной топкой Везувий — для любителей Русской бани (температура в районе 60-70 С), печь в сетке для большого количества камней.
Камни для печи Габбро-Диабаз
Дымоход Сэндвич труба (1 метр — 2 шт.) из нержавеющей стали с оголовком
Потолочный проходной узел ППУ из нерж/оцин стали, проходной элемент кровли (флешмастер)
Бак для горячей воды Нержавеющая сталь (55 л), гибкая подводка с краном
Защитный экран стены Нержавеющая сталь, минерит, воздушный зазор
Парная Полки, выполнены из липы. .
Вентиляция Окно в парной, для залпового проветривания (деревянное, не используется монтажная пена-только экологически чистая пакля). Вентиляционные отверстия с вентрешётками, для естественной вентиляции.
Электрика Комплект электрики (включатель, распредкоробка, кабель, гофроканал, клипсы)
Освещение Комплект освещения (крафтовые светодиодные светильники вместе с трансформатором на 12 В., что обеспечивает безопасность в парном отделении).
Сборка Работа по сборке включена в стоимость
Покраска Работа по покраске включена в стоимость
Проект Включен в стоимость
Доставка до участка Заказчика Рассчитывается отдельно
Дополнительные опции Дополнительные опции рассчитываются отдельно

Детали

Длина

3,5

Ширина

2,5

Вид кровли

Двускатная

Поделитесь с друзьями!
Поделиться в vk
VK
Поделиться в odnoklassniki
OK
Поделиться в whatsapp
WhatsApp
Поделиться в telegram
Telegram

Оформить заявку

Оформить в ипотеку

Заказать баню на колесах

Продолжая использовать сайт, вы соглашаетесь на обработку файлов cookie и с политикой обработки персональных данных

Заявка на вызов мастера
Заявка на расчет стоимости
Заявка на покраску

Задать вопрос

Заказ обратного звонка