...
Наши выставки
Россия г. Калиниград

Приморское кольцо 2/1, ТЦ Балтия Молл

Россия г. Калиниград

Советский проспект 159г, ТЦ Гранд

Брусовая баня МКС "Старт" (3х2,4)

[woosw id="'{$product_id}""]
Рубрика

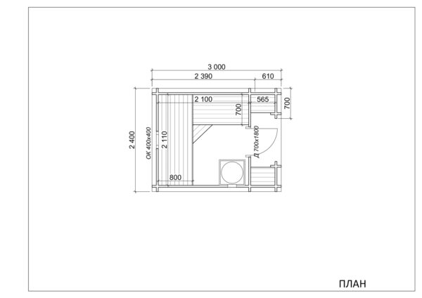
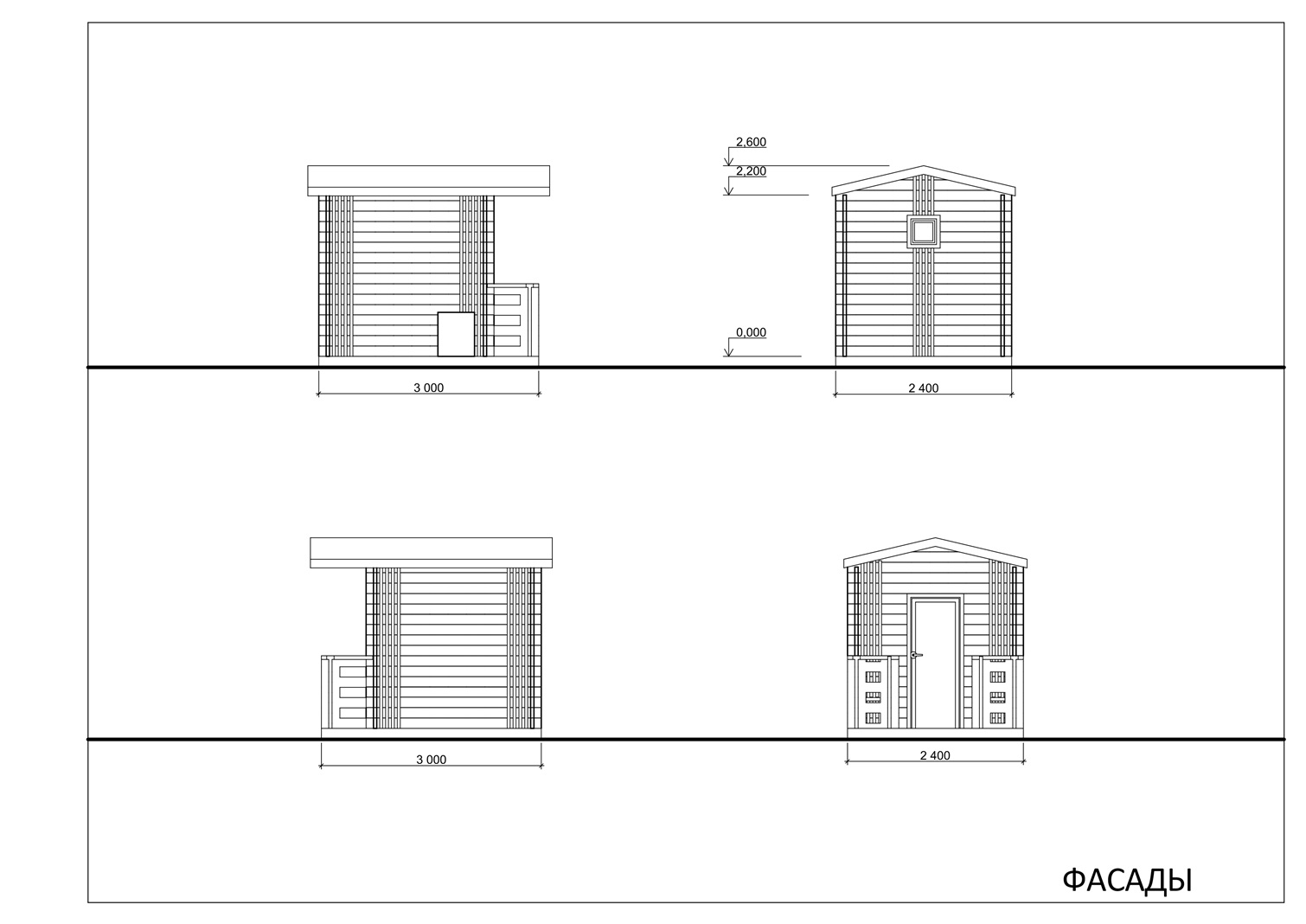
Габаритные размеры бани составляют *3000 × 2400 мм*, включая крыльцо, что делает её компактной, но при этом достаточно вместительной для полноценного отдыха всей семьей.

Баня отличается *мобильностью* — её можно легко перевезти и установить на участке без сложных работ. Сборка и монтаж производятся в кратчайшие сроки, что делает её идеальным решением для тех, кто ценит скорость и удобство.

Все элементы конструкции выполнены с *заводским качеством*, что гарантирует надёжность, долговечность и безупречное исполнение. Каждая деталь проходит строгий контроль на производстве, чтобы соответствовать высоким стандартам.

Особое внимание уделено практичности и удобству эксплуатации. *Топка бани расположена с улицы*, что обеспечивает чистоту в помещении и позволяет безопасно и комфортно разводить огонь. Это решение особенно актуально для тех, кто заботится о чистоте и порядке в парной.

Баня имеет *современный дизайн*, который подойдёт как для традиционного, так и для современного участка. Эстетичные линии, продуманная планировка и натуральные материалы делают её не только функциональной, но и привлекательной визуально.

В центре бани — *русская парная*, где можно наслаждаться традиционной банным ритуалом: париться, мыться, расслабляться и восстанавливать силы. Всё продумано для вашего комфорта и здоровья.

Описание

Стены и перегородки Материал изготовления бани — отборный хвойный профиль камерной сушки, толщиной 43-44мм, влажностью – 10-14%. Снаружи и внутри обработанный защитным составом (антисептиком).
Материал кровли Гибкая черепица
Ветровые и торцевые планки Строганная доска камерной сушки 20*145 мм
Соединение между ламелями Осуществлено способом «шип\ паз». С применением герметизирующего, акрилового раствора «тёплый шов» Каждая ламель крепится друг к другу при помощи конструкционных саморезов, располагающихся в шахматном порядке друг от друга.
Полы Шпунтованная доска камерной сушки 28 мм по деревянным лагам 45*145 мм
Двери Входная дверь матовое стекло.
Окна В парилке окно из липы, деревянное, со стеклопакетом (400*400 мм)
Наличники Строганная доска камерной сушки сечением 20*90 мм
Подставка под печь Нержавеющая сталь, ЦСП, воздушный зазор
Печь с выносной топкой Везувий — для любителей Русской бани (температура в районе 60-70 С), печь в сетке для большого количества камней.
Камни для печи Габбро-Диабаз
Дымоход Сэндвич труба (1 метр — 2 шт.) из нержавеющей стали с оголовком
Потолочный проходной узел ППУ из нерж/оцин стали, проходной элемент кровли (флешмастер)
Бак для горячей воды Нержавеющая сталь (55 л), гибкая подводка с краном
Защитный экран стены Нержавеющая сталь, минерит, воздушный зазор
Парная Полки выполнены из липы.
Вентиляция Окно в парной, для залпового проветривания (деревянное, не используется монтажная пена-только экологически чистая пакля). Вентиляционные отверстия с вентрешётками, для естественной вентиляции.
Электрика Комплект электрики (включатель, распредкоробка, кабель, гофроканал, клипсы)
Освещение Комплект освещения (крафтовые светодиодные светильники вместе с трансформатором на 12 В., что обеспечивает безопасность в парном отделении).
Сборка Работа по сборке включена в стоимость
Покраска Работа по покраске включена в стоимость
Проект Включен в стоимость
Доставка до участка Заказчика Рассчитывается отдельно
Дополнительные опции Дополнительные опции рассчитываются отдельно
Поделитесь с друзьями!
Поделиться в vk
VK
Поделиться в odnoklassniki
OK
Поделиться в whatsapp
WhatsApp
Поделиться в telegram
Telegram

Оформить заявку

Оформить в ипотеку

Заказать баню на колесах

Продолжая использовать сайт, вы соглашаетесь на обработку файлов cookie и с политикой обработки персональных данных

Заявка на вызов мастера
Заявка на расчет стоимости
Заявка на покраску

Задать вопрос

Заказ обратного звонка