Наши выставки
Россия г. Калиниград

Приморское кольцо 2/1, ТЦ Балтия Молл

Россия г. Калиниград

Советский проспект 159г, ТЦ Гранд

Каркасный дом с террасой проект 26

[woosw id="'{$product_id}""]

КАРКАСНЫЕ ДОМА ОТ ЗАВОДА МКС

ЭТОТ ПРОЕКТ ВОЗМОЖНО ИЗМЕНИТЬ ПО ВАШЕМУ ЖЕЛАНИЮ!

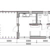
Современный дизайн одноэтажного дома, стильная планировка, оригинальная отделка. Данный проект подойдет как загородный дом, для отдыха в отпуске или на выходных на берегу моря.

В доме расположена большая гостиная с отделенной кухонной зоной с выходом на просторную террасу, где Вы сможете принимать шумную компанию друзей и ванная комната. Панорамное остекление фасада впустит потоки солнечного света в Ваше гнездышко. .

Вам понравился проект? Приходите и этот дом будет Вашим!

РАССРОЧКА ПЛАТЕЖА ИЛИ ИПОТЕКА!

Описание

Конструкция фундамента
Фундамент Индивидуальный подход в зависимости от грунтов (шведская армированная бетонная плита или забивные ЖБИ сваи h3000, возможны и другие варианты).
Конструктив строения
Конструктив Строганный Брус камерной сушки (согласно проектной документации).
Сборка стен Заводское производство, пневмоинструментом.
Обработка Огне-биозащитным раствором.
Крепеж Анодированные/оцинкованные метизы.
Ветрозащита Зашита от проникновения влаги в конструкцию и утеплитель из внешней среды. Также обеспечивает выветривание водяных паров из утеплителя.
Кровельная система
Стропильная система Калиброванный брус камерной сушки (согласно проектной документации).
Ветровлагозащита Кровельная мембрана (расчитывается по паропроницаемости исходя из площади и назначения строения, возможно применение современных материалов МДВП).
Обрешетка/контробрешетка Пиломатериалы хвойных пород обработанные огне-биозащитным раствором.
Кровельное покрытие Металлочерепица (толщина от 0,4 мм), возможно использование мягкой кровли и керамической черепицы.
Звукоизоляция Возможно применение современных звукоизоляционных материалов.
Оконная система
Окна ПВХ , пятикамерный профиль заводского изготовления (устанавливаются в теплый контур здания, предусмотрена парозащита монтажного материала).
Оконные водоотливы Выполнены из металла.
Фасад
Материал Натуральное дерево камерной сушки (различного профиля); возможно использование других современных материалов.
Покраска Цеховая покраска профессиональным вакуумным оборудованием финскими красками.
Утепление
Утеплитель Негорючие тепло-звукоизоляционные материалы.
Защита утеплителя Пароизоляционные пленки для защиты утеплителя и элементов конструктива от насыщения парами воды изнутри помещения. Обратите внимание: все швы проклеиваются .
Внутренняя отделка
Любые виды отделочных материалов по желанию заказчика.
*выше представлена технология строительства

Детали

Площадь дома

от 20 до 40м²

Этажность

1

Количество спален

1

Количество санузлов

1

Дополнительные элементы

Терраса

Поделитесь с друзьями!
Поделиться в vk
VK
Поделиться в odnoklassniki
OK
Поделиться в whatsapp
WhatsApp
Поделиться в telegram
Telegram

Оформить заявку

Оформить в ипотеку

Заказать баню на колесах

Продолжая использовать сайт, вы соглашаетесь на обработку файлов cookie и с политикой обработки персональных данных

Заявка на вызов мастера
Заявка на расчет стоимости
Заявка на покраску

Задать вопрос

Заказ обратного звонка