Описание
Что такое садовый домик из профилированного бруса? Выбирая материал для постройки садового домика, многие отдают предпочтение древесине. В современном строительстве все чаще выбирают строения из профилированного бруса (толщина бруса 43 мм). С его помощью можно возвести объект в короткие сроки и по минимальной цене. Поверхность материала строганная, поэтому такие постройки не требуют внешней и внутренней отделки. Для изготовления используются хвойные породы древесины, а при его скреплении исключено применение различных клеевых растворов. Готовые изделия подвергаются принудительному просушиванию. Это сводит к минимуму усадку и деформацию построек из бруса. Благодаря небольшому весу конструкции, возможно использование простого блочного фундамента. Собрать такой домик возможно за несколько дней без использования специальной техники и привлечения большого количества специалистов, без грязи и вытоптанной травы.
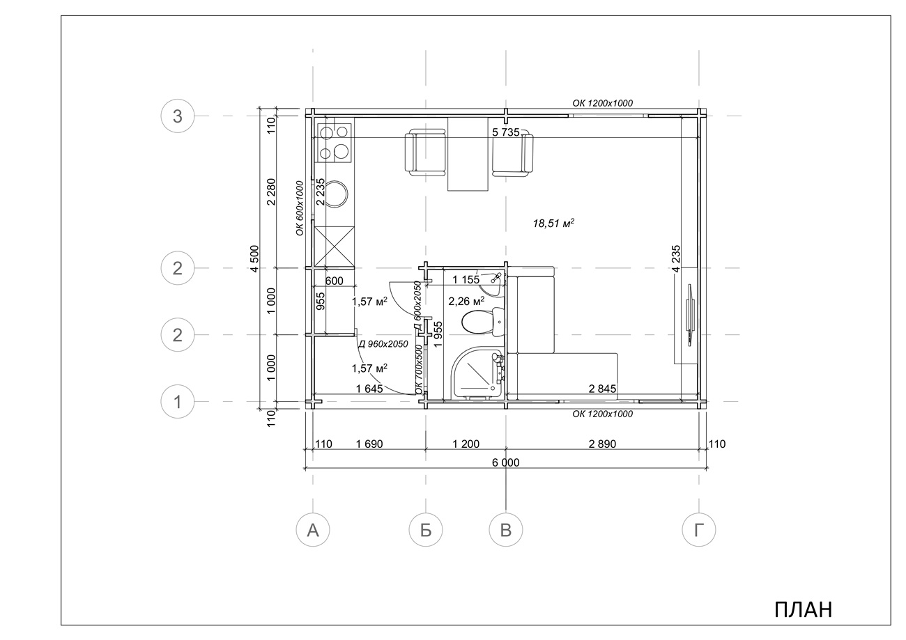
Данный проект включает в себя комнату 12 кв.м. и кухню 7 кв.м., с большим количеством окон и небольшой террасой, на которой приятно вечером с семьей поужинать и поговорить по душам.
Выбирая продукцию нашей компании, вы получаете современную, красивую, оригинальную, недорогую садовую постройку, которая будет радовать хозяев и ваших гостей.










