...
Наши выставки
Россия г. Калиниград

Приморское кольцо 2/1, ТЦ Балтия Молл

Россия г. Калиниград

Советский проспект 159г, ТЦ Гранд

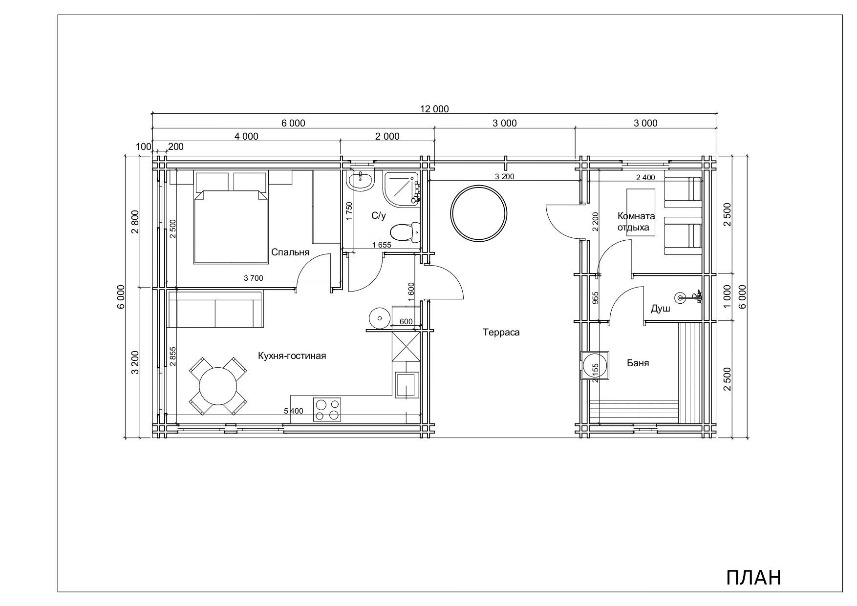
Дом с террасой и баней (6х12)

[woosw id="'{$product_id}""]

Дом из двойного бруса с утеплением – это прекрасное решение для дачного дома на Вашем участке для круглогодичного отдыха. Двойной или теплый  брус, это  стена, состоящая из двух сухих (камерной сушки) профилированных мини-брусьев хвойных пород  и свободного пространства между ними, которое заполняется бесшовным утеплителем (эковата) при помощи специализированного оборудования. В качестве чистового покрытия кровли используется гибкая черепица которая монтируется на подкладочный ковер, окна ПВХ с ламинацией, входная дверь металлическая, на полы монтируется шпунтованная половая доска (кровля, полы утепляются «Эковатой»), при монтаже бруса используются монтажные герметизирующие составы, каждый ряд бруса прокручивается 180 мм конструкционными саморезами, на перерубы монтируются ветровые короба. Потолки террасы и внутренних помещений обшиты «имитацией бруса».

Благодаря технологии «шип-паз» и соединений  «ветровых замков», строение получается надёжное.

Такой дом не требует дополнительной отделки, Вам  остаётся лишь выбрать для него цвет.

Деревянные дома из Двойного Бруса выглядят красиво и стильно, имеют   природную элегантность .

Эксплуатация такого дома не вызывает сложностей.

 

Почему выбирают нас:

  • При строительстве используются Экологически безопасные материалы
  • Профессиональное европейское оборудование;
  • Подготовка домокомплекта на заводе по проектной документации;
  • Собственное производство в Калининграде;
  • Индивидуальный подход;
  • Нестандартные комплектации;
  • ТЕРМООБРАБОТАННЫЙ, АНТИСЕПТИРОВАННЫЙ брус Северных пород леса;
  • Сжатые сроки;
  • Имеем опыт строительства более 10 лет

Стоимость со сборкой:

Описание

стены Двойной профилированный строганный минибрус хвойных пород древесины сечением 45*140 мм, камерной сушки 12-14 %;  утепление (между брусом) – 100мм, мембрана
опорные балки кровли профилированный строганный минибрус из древесины хвойных пород сечением                                 45*140 мм
ветровые и торцевые планки строганная доска камерной сушки, сечением 20*145 мм
полы шпунтованная доска камерной сушки, толщина 28 мм по деревянным лагам 50*150 мм; черновая доска; утепление 150мм, мембрана.
плинтус напольный и потолочный 35*35 мм
лаги 45х145мм
двери дверь  входная металлическая
обрешетка Сухой строганый брус
окна стеклопакет
наличники строганная доска камерной сушки сечением 20*95 мм
крыша Стропильная система 45х145мм ;подкладочный ковёр , кровельный материал — гибкая черепица Shinglas. ; цвет на выбор: коричневый, зеленый, красный, серый утепление 150мм, мембрана;
потолок Открытый, обшит вагонкой хвоя, сорт А
Поделитесь с друзьями!
Поделиться в vk
VK
Поделиться в odnoklassniki
OK
Поделиться в whatsapp
WhatsApp
Поделиться в telegram
Telegram

Оформить заявку

Оформить в ипотеку

Заказать баню на колесах

Продолжая использовать сайт, вы соглашаетесь на обработку файлов cookie и с политикой обработки персональных данных

Заявка на вызов мастера
Заявка на расчет стоимости
Заявка на покраску

Задать вопрос

Заказ обратного звонка