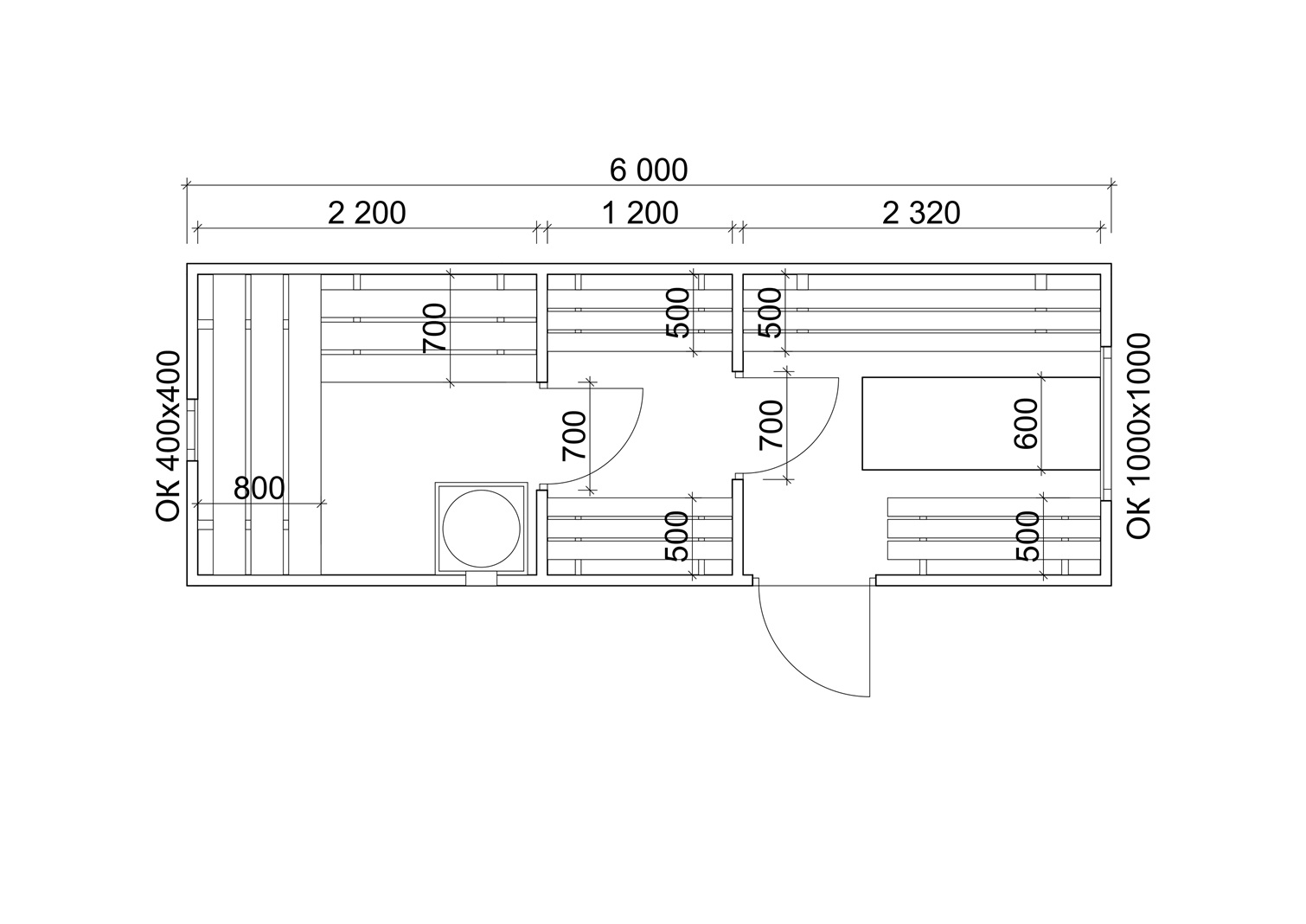
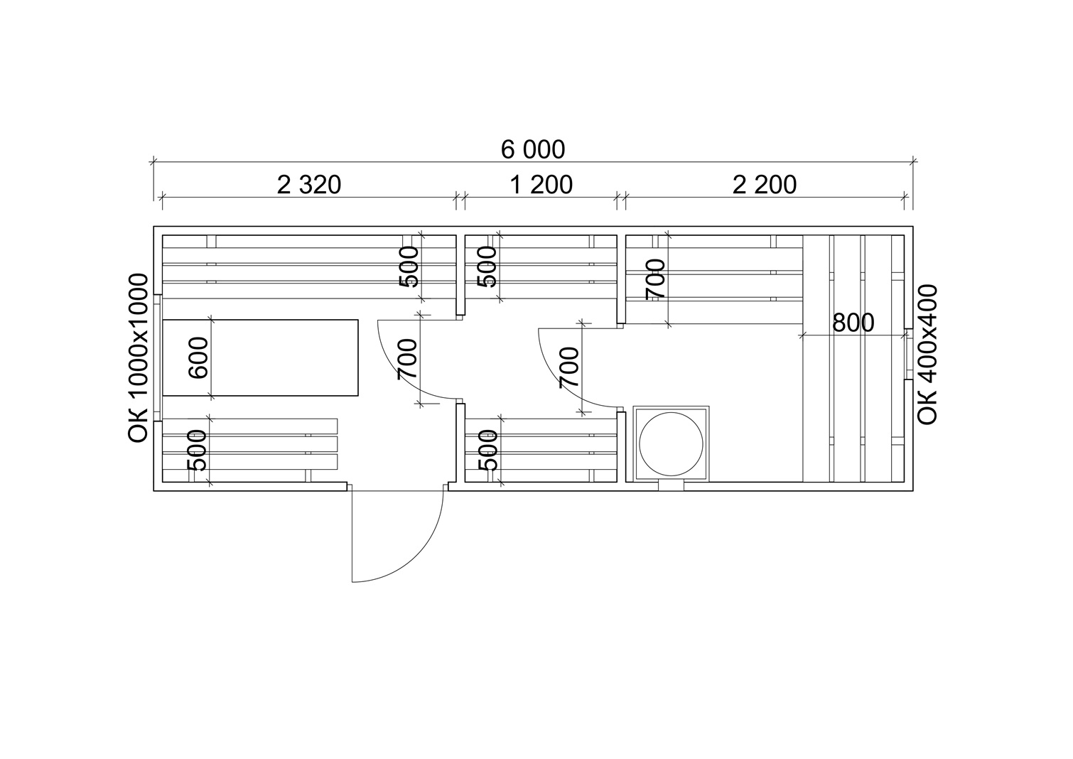
Описание
1. Материал изготовления бани — отборный хвойный профиль камерной сушки, толщиной 43мм, влажностью – 13%, Снаружи и внутри обработанный защитным составом (антисептиком)
2.Соединение между ламелями осуществлено способом «лунный паз». Каждая ламель крепится друг к другу при помощи конструкционных саморезов, располагающихся в шахматном порядке друг от друга, также конструкция опоясана обручами из нержавеющей стали с регулируемыми замками.
3. Финишное покрытие кровли из гибкой черепицы Технониколь. Цвет — на выбор. Под финишное покрытие кровли монтируется сплошной подкладочный ковёр.
4. Основание бани — деревянные ножки.
5. Входная дверь металлическая (по вашему желанию можно установить стеклопакет ). В данной модели есть возможность организации бокового входа.
6. В парной монтируется печь,:
Любителям «Русской бани» — Дровяная печь «Везувий» с внутренней топкой и сеткой для большого количества камней.
Печь монтируется на подставку из негорючих материалов (миниритовый лист, нержавеющая сталь).
7.Стены бани защищены от жара защитным тепловым экраном из минирита и отражающим экраном из нержавеющей стали.
8.Межкомнатные двери на выбор заказчика: деревянные из липы или стеклянные (монтируется с использованием пакли).
9.Дымоход в сборе: сэндвич труба из нержавеющей стали, проходной кровельный элемент (флэш мастер), оголовок.
10. На дымоходе расположен бак для воды из нержавеющей стали с краном.
11.В парной – продумана вентиляция (приток свежего воздуха) устанавливается банное окно (монтируется с использованием пакли).
12.В комплектацию входят полки из осины или липы (2 шт) в парную, а на пол изготавливается трапик. В комнату отдыха устанавливаются лавочки и стол.
13.В комплектацию входит комплект освещения (крафтовый светодиодный светильник вместе с трансформатором на 12 В., что обеспечивает безопасность в парном отделении).











