Описание
Описание
1. Материал изготовления бани — отборный хвойный профиль камерной сушки, толщиной 43мм, влажностью – 13%.
2. Соединение между ламелями осуществлено способом «лунный паз». Каждая ламель крепится друг к другу при помощи конструкционных саморезов, располагающихся в шахматном порядке друг от друга, также конструкция опоясана обручами из нержавеющей стали с регулируемыми замками.
3. Финишное покрытие кровли из гибкой черепицы. Цвет — на выбор. Под финишное покрытие кровли монтируется сплошной подкладочный ковёр.
4. Основание бани — деревянные ножки.
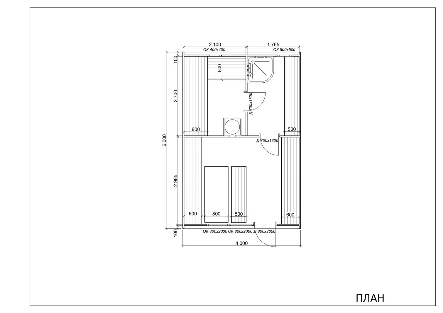
5. Входная дверь ПВХ .
6. В парной монтируется дровяная печь, в зависимости от предпочтений заказчика:
— для любителей «Русской бани» — Дровяная печь «Везувий» в сетке с большим объемом камней;
Печь монтируется на подставку из негорючих материалов (минеритовый лист, нержавеющая сталь). Стены бани защищены от жара защитным тепловым экраном из минерита и отражающим экраном из нержавеющей стали.
7. Межкомнатные двери: стеклянные (монтируется с использованием пакли).
8. Дымоход в сборе: сэндвич труба из нержавеющей стали, проходной кровельный элемент (флэш мастер), оголовок.
9. На дымоходе расположен бак для воды из нержавеющей стали 55л с краном.
10. В парной – продумана вентиляция (приток свежего воздуха) устанавливается банное окно (монтируется с использованием пакли)для залпового проветривания, впереди большое панорамное окно из закаленного тонированного стекла.
11 В комплектацию входят полки из осины или липы (2 шт) в парную. В комнату отдыха устанавливаются лавочки и стол.
12. В комплектацию входит комплект освещения (крафтовый светодиодный светильник вместе с трансформатором на 12 В., что обеспечивает безопасность в парном отделении).










